四川麥克威通風設備有限公司
咨詢熱線:028-82630900
手機:13881905158
傳真:028-82630433
郵箱:mcwell@qq.com
辦公:成都市青羊區光華東三路489號西環廣場2棟
廠址:成都市金堂淮口工業區節能大道(國染大道)
通風采光天窗11cj33圖解基座安裝方案
基座是連接通風采光天窗與屋面的構件,其直接安裝在屋面,安裝的好壞將直接影響天窗的密封性、防水性。本文將根據通風采光天窗11cj33圖解基座安裝方案。
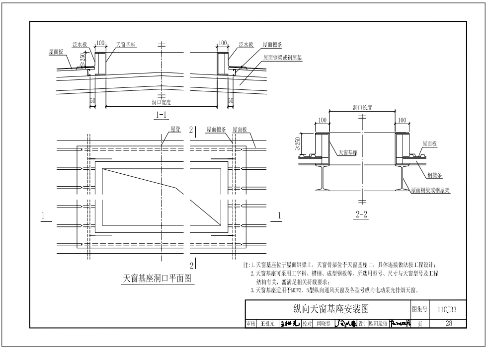
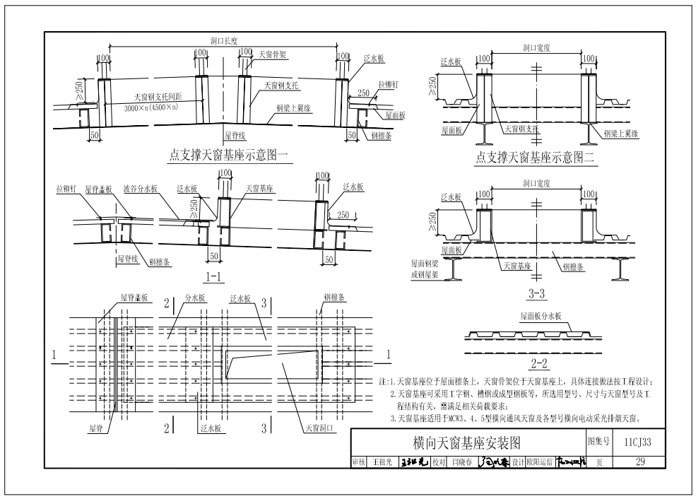
天窗基座安裝在屋面鋼梁或檁條上,而骨架則直接安裝在基座上。天窗基座一般采用工字鋼、槽鋼、成型鋼板等材料制作,而材料的型號、尺寸則與天窗型號及工程結構有關系,必須滿足項目所需荷載要求,保證結構安全性。
通風采光天窗11cj33圖解第26頁適合MCW1型薄型通風天窗和MCW2型薄型通風天窗,其橫向和縱向基座平面布置圖、基座安裝剖面圖如下:
MCW4型通風天窗(壓桿式)、MCW5型通風天窗(暗扣式)以及電動采光排煙天窗基座安裝圖如下:
縱向天窗和橫向天窗基座安裝示意圖如下:
熱點產品 / Hot Products
“推薦閱讀”
- 2024-05-2509j621-2電動采光排煙天窗圖集側開型天窗說明
- 2024-05-27【建筑圖集】09j621-2電動采光排煙天窗圖集免費下載
- 2024-05-2811cj33通風采光天窗圖集之結構荷載設計






川公網安備 51010502010565號
掃一掃更精彩
掃一掃

